Starlex Mūkusalas biznesa centrs

Mūkusalas biznesa centrs


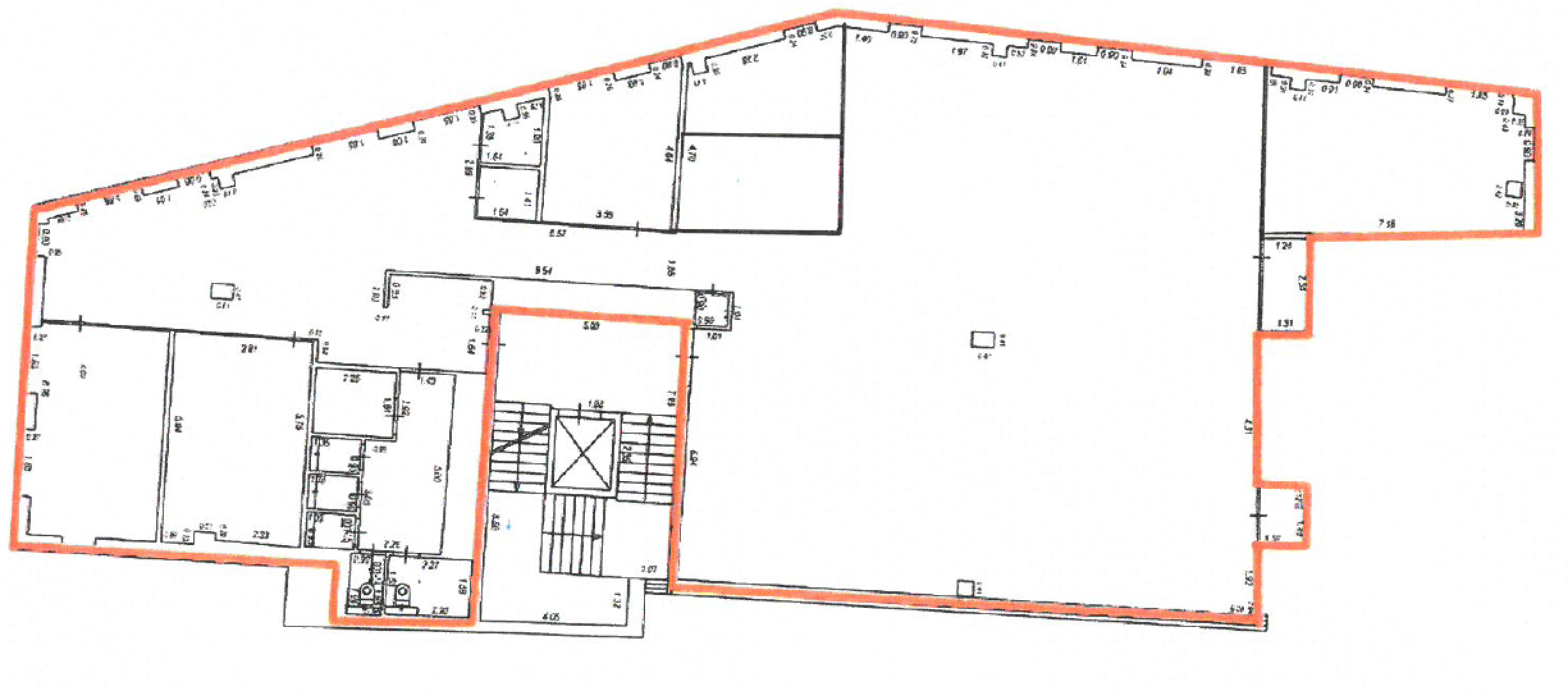
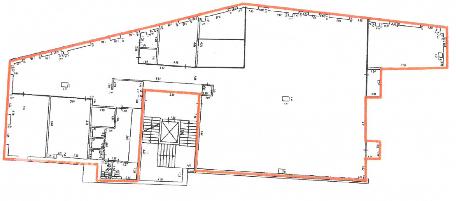
469 m2

7 telpas

2 / 4 stāvs
6 097 EUR/mēn - 13,0 EUR/m2
Mūkusalas iela 42C, Torņakalns, Rīga
Uldis Kleinovskis
+371 29999367
uldis.kleinovskis@starlex.lv
Pieteikt apskati
← Atpakaļ
Galerija

Apraksts:

Moderna biroja ēka. Mūkusalas biznesa centrs. 2. stāvs. Telpas labā stāvoklī. Pievilktas visas komunikācijas, spēcīga kondicionēšanas/ ventilācijas sistēma. Pie ēkas plaša auto stāvvieta. Teritorijā diennakts apsardzes dienests, videonovērošana. Darbinieku un klientu ērtībām teritorijā kafejnīcas, atpūtas āra laukums, sporta klubs.

Pieejams birojs ar kopējo platību 469 m2 – 9 telpas. 2. stāvs. Savas labierīcības. 2 ieejas.

Birojs daļēji mēbelēts.

Nomas maksa 13 Euro/kv.m. + apsaimniekošana (2,5 Euro/kv.m.) + komunālie maksājumi.


  • Gāzes apkure
  • Autonoma apkure
  • Apsargs un kameras
  • Internets
  • Kondicionieris
  • Signalizācija
  • Mēbelēts
  • Slēdzama kāpņu telpa
  • Elektrības pieslēgums
  • Ūdens pieslēgums



Plānojums:



Uz kartes:

Starlex inovatīvā un atraktīvā pieeja nodrošina efektīvu pārdošanas procesu!
X

Nosūtīt ziņu

Privātums ir svarīgs

Mēs izmantojam sīkdatnes, lai nodrošinātu jums labāko pieredzi mūsu vietnē.

Mēs izmantojam arī papildu sīkdatnes, lai saprastu, kā tiek izmantota mūsu vietne un uzlabotu mūsu pakalpojumus.