Starlex A klases biroja telpas pie Kronvalda parka

A klases biroja telpas pie Kronvalda parka


467 m2

8 telpas

1 / 3 stāvs
5 604 EUR/mēn - 12,0 EUR/m2
Kronvalda bulvāris 3, Centrs, Rīga
Oskars Frīde
+371 29352652
oskars@starlex.lv
Pieteikt apskati
← Atpakaļ
Galerija

Apraksts:

Iznomā mūsdienīgas biroja telpas Rīgas centrā, Kronvalda bulvārī 3.

Birojs būs pieejams no 02/2026, apskatīt un vienoties par nosacījumiem ir iespējams jau tagad.

Pēc telpu atbrīvošans iznomātājs veiks kosmētisko remontu, nepieciešamības gadījumā iespējams vienoties par telpu plānojuma pielāgošanu nomnieka vajadzībām.

Īpašuma atrodas tādi uzņēmumi kā - ''Olympic Casino Latvia'', ''Rödl & Partner'' advokātu birojs, ''TNS Latvia'', ''Knauf AMF''.

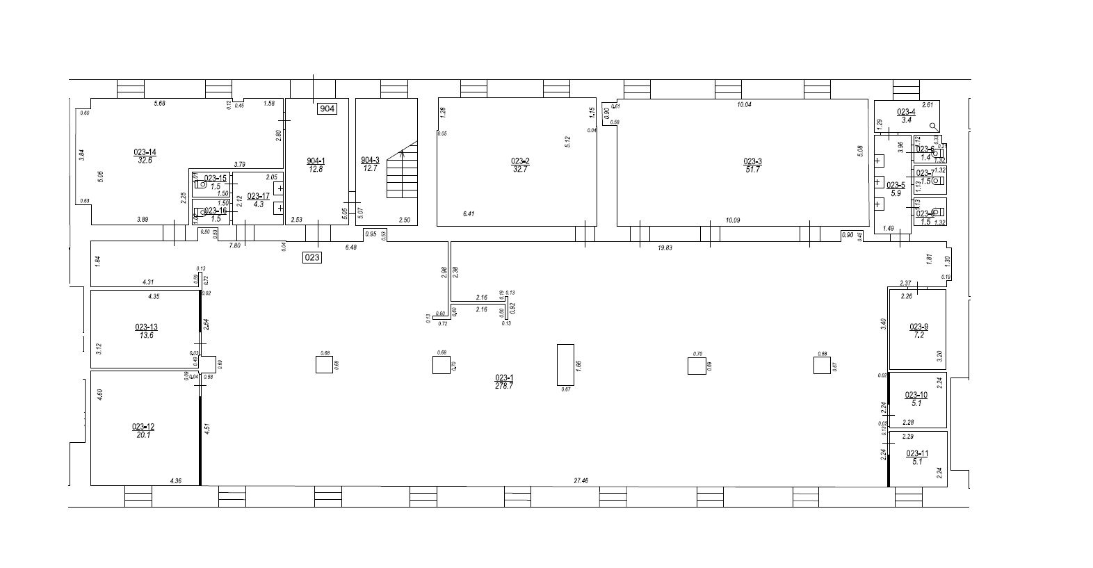
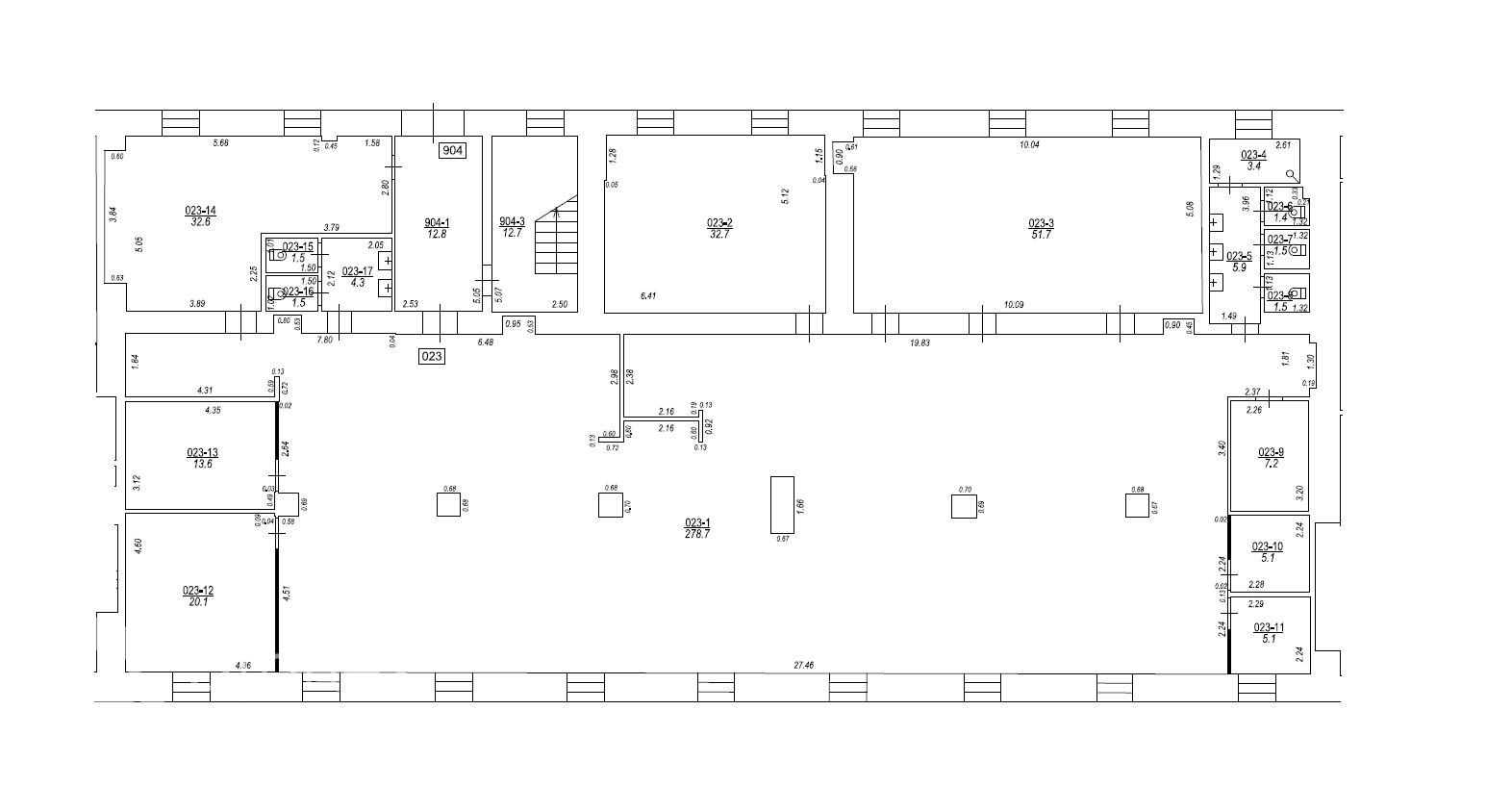
Plānojums: plaša 278 m2 atvērta plānojuma darba telpa, 7 izolētas darba telpas, virtuve, WC.

Biroju ēka atbilst augstas klases biroju ēkai, ēkā tiek nodrošināta gaisa kondicionēšanas un ventilācijas sistēmas, teritorijā tiek veikta diennakts apsardze un videonovērošana, nomniekiem ir 24/7 piekļuve biroja telpām. Ēkā pieejams jaudīgs CAT 5 ''Lattelecom'' optiskais internets.

Biroji aprīkoti ar gaisa ventilācijas un kondicionēšanas sistēmām telpās

Pieejamas visas ērtības un komunikācijas, ēkā tiek veikta videonovērošana, reprezentabla un skaista kāpņu telpa.

Nomniekiem tiek nodrošināta diennakts piekļuve biroja telpām.

Īpašumā tiek nodrošināta profesionāla apsaimniekošana.

Papildus ir jāmaksā 1.40 EUR/m2 apsaimniekošanas maksa.

Vēlamais līguma termiņš - 5 gadi, drošības nauda 2 nomas mēneša maksu apmērā.

Ēkas iekšpagalmā nomniekam uz katriem nomātajiem 60 m2 pienākas 1 maksas auto stāvvieta.

Nomas maksa: 12 EUR/m2 + apsaimniekošanas maksa + komunālie maksājumi + NĪN + PVN.

  • Centrālā apkure
  • Apsargs un kameras
  • Internets
  • Kondicionieris
  • Signalizācija
  • Slēdzama kāpņu telpa
  • Elektrības pieslēgums
  • Ūdens pieslēgums



Plānojums:



Uz kartes:

Starlex inovatīvā un atraktīvā pieeja nodrošina efektīvu pārdošanas procesu!
X

Nosūtīt ziņu

Privātums ir svarīgs

Mēs izmantojam sīkdatnes, lai nodrošinātu jums labāko pieredzi mūsu vietnē.

Mēs izmantojam arī papildu sīkdatnes, lai saprastu, kā tiek izmantota mūsu vietne un uzlabotu mūsu pakalpojumus.