Starlex Level A loft style office near Kronvalda park

Level A loft style office near Kronvalda park


1115 m2

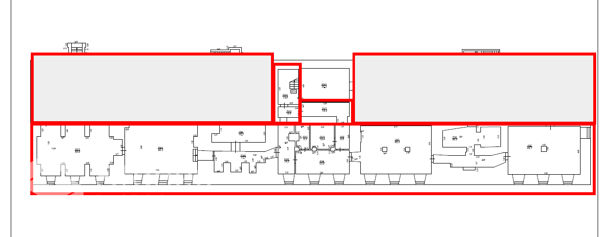
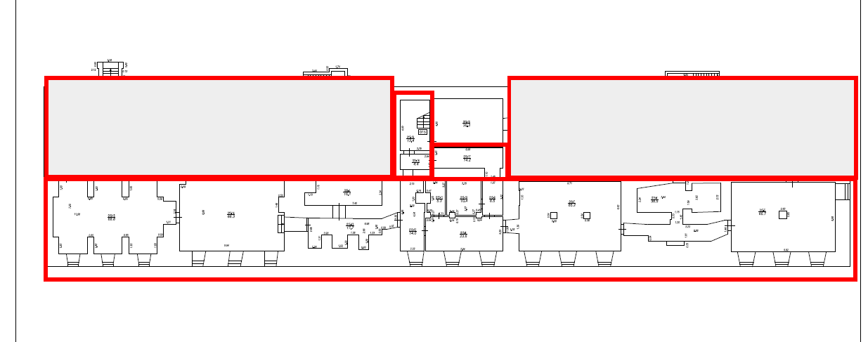
10 telpas

1 / 3 stāvs
13 380 EUR/mēn - 12,0 EUR/m2
Kronvalda bulvāris 3, Centrs, Rīga
Oskars Frīde
+371 29352652
oskars@starlex.lv
Pieteikt apskati
← Atpakaļ
Galerija

Apraksts:

Iznomā A klases biroja telpas Rīgas klusajā centrā, Kronvalda bulvārī 3.

Biroja telpas aizņem autonomu ēkas bloku trīs stāvos (1-3. stāvs). Pirmais stāvs piemērots biroja vajadzībām ar nepieciešamības gadījumā klientu apkalpošanas funkciju (ieejas mezgls atbilst vides pieejamības prasībām), 2. stāva un mansarda telpas ir piemērotas biroja vajadzībām.

Iznomātājs par saviem līdzekļiem birojā veiks kosmētisko remontu, remonts tiks veikts loft stilā, akcentu liekot uz vēsturiskajiem elementiem - atsegtām ķieģeļu sienām, koka sijām (mansarda stāvā), tiks uzstādīti moderni LED gaismas ķermeņi, birojs nomniekam tiks nodots ar pilno apdari.

Biroju ēka atbilst augstas klases biroju ēkai, ēkā tiek nodrošināta gaisa kondicionēšanas un ventilācijas sistēmas, teritorijā tiek veikta diennakts apsardze un videonovērošana, nomniekiem ir 24/7 piekļuve biroja telpām. Ēkā pieejams jaudīgs CAT 5 ''Lattelecom'' optiskais internets.

Ēkas iekšpagalmā nomniekam maksas stāvvietas - 1 vieta uz apmēram 60 m2.

Papildus jāmaksā par komunālajiem pakalpojumiem (elektrība, ūdens, apkure, atkritumu izvešana), kā arī 1.25 EUR/m2 apsaimniekošanas maksa.

Platība: 1115m2.

Nomas maksa: 13380 EUR/mēnesī (12 EUR/m2) + komunālie maksājumi + apsaimniekošanas maksa + PVN.

  • Centrālā apkure
  • Apsargs un kameras
  • Internets
  • Kondicionieris
  • Signalizācija
  • Slēdzama kāpņu telpa
  • Ūdens pieslēgums



Plānojums:



Uz kartes:

Starlex inovatīvā un atraktīvā pieeja nodrošina efektīvu pārdošanas procesu!
X

Nosūtīt ziņu

Privātums ir svarīgs

Mēs izmantojam sīkdatnes, lai nodrošinātu jums labāko pieredzi mūsu vietnē.

Mēs izmantojam arī papildu sīkdatnes, lai saprastu, kā tiek izmantota mūsu vietne un uzlabotu mūsu pakalpojumus.