Starlex Jaunais projekts Teikā – funkcionalitāte, komforts un ilgtspējīga būvniecība

Jaunais projekts Teikā – funkcionalitāte, komforts un ilgtspējīga būvniecība


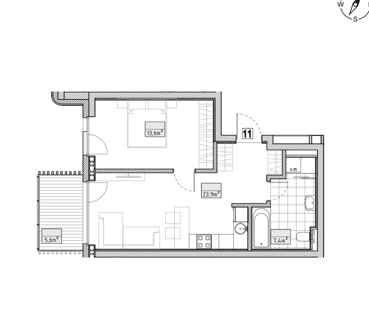
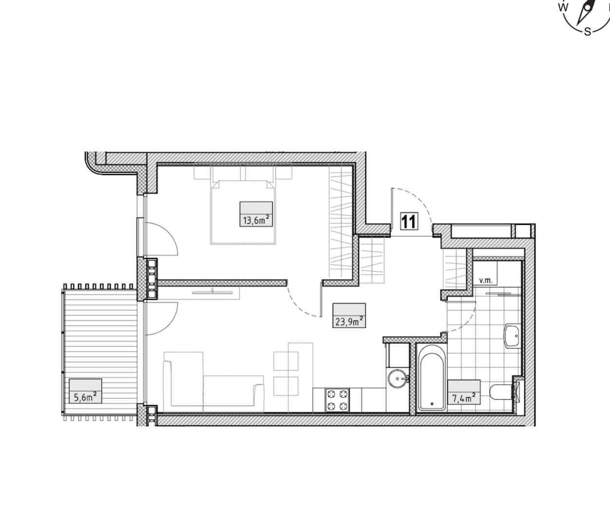
50.5 m2

2 telpas

2 / 4 stāvs

jaunais projekts
161 600 EUR
Kaukāza 11, Teika, Rīga
Kristīne Koļadina
+371 20722207
kristine@starlex.lv
Pieteikt apskati
← Atpakaļ
Galerija

Apraksts:

Jaunais četrstāvu projekts starp Brīvības un Ropažu ielu ir radīts cilvēkiem, kuri novērtē augstu kvalitāti, modernu pieeju un pārdomātas detaļas.

Divu istabu dzīvoklis (50.5m²) ar plašu vannasistabu un izcilu plānojumu. Pilnu apdari, augstiem griestiem (2.8 m) un kvalitatīvu Tarkett grīdas segumu. Terase 5.6². Sienas, grīdas un durvis nodrošina paaugstinātu skaņas izolāciju. Vannasistabās uzstādīta augstas kvalitātes santehnika, akmens masas vannas un elektriskie dvieļu žāvētāji. Visā dzīvoklī siltās grīdas ar individuāliem siltuma skaitītājiem.

Ēkai ir A++ energoefektivitātes klase. Katrā dzīvoklī uzstādīts kondicionieris, un rekuperācijas sistēma nodrošina vienmērīgu gaisa cirkulāciju.

Ēka ar puspazemes autostāvvietu un liftu. Slēgta, labiekārtota teritorija ar bērnu laukumu un atpūtas zonām. Elektriski verami vārti, domofons un videonovērošana nodrošina papildu drošību. Visas pilsētas komunikācijas, attīstīta infrastruktūra – tuvumā veikali, skolas, bērnudārzi - vecā Teika.

Projekta nodošana ekspluatācijā – 2025. gada decembris. Rezervējiet savu dzīvokli jau tagad un ieguldiet kvalitatīvā un komfortablā dzīves telpā.

  • Centrālā apkure



Plānojums:



Uz kartes:

Starlex inovatīvā un atraktīvā pieeja nodrošina efektīvu pārdošanas procesu!
X

Nosūtīt ziņu

Privātums ir svarīgs

Mēs izmantojam sīkdatnes, lai nodrošinātu jums labāko pieredzi mūsu vietnē.

Mēs izmantojam arī papildu sīkdatnes, lai saprastu, kā tiek izmantota mūsu vietne un uzlabotu mūsu pakalpojumus.