Starlex


82.9 m2

3 telpas

1 / 5 stāvs

jaunais projekts
175,000 163 000 EUR
Inčukalna iela 2, Mežaparks, Rīga
Adrians Briedis
+371 26849098
adrians@starlex.lv
Pieteikt apskati
← Atpakaļ
Galerija

Apraksts:

Šajā vēsturiskajā un skaistajā vietā paveras unikāla iespēja iegādāties lielisku dzīvokli savai nākotnes dzīvesvietai.


Renovētajā un nosiltinātajā ēkā ir visas pilsētas komunikācijas – ūdensapgāde un kanalizācija, elektrība, centrālā apkure. Izbuvēts lifts. Māja būvēta no silikātķieģeļiem, pamati un starpsienas no monolīta dzelzsbetona, bet jumts ar metāla segumu. Ārsienas – ar dekoratīvo apdari ar ventilēšanas sistēmu, laba skaņas izolācija. Bruģēts ceļš un autostāvvieta līdz 30 mašīnu vienībām un elektrouzlādes stacija. Norobežota teritorija un slēdzama kāpņutelpa. Mājas augstā energoefektivitāte jūtami samazinās ikmēneša komunālos maksājumsu gada aukstākajos mēnešos.


Dzīvoklis ar pabeigtu kvalitatīvu iekšējo apdari;

Parketa grīdas;

Pilnībā pabeigti un aprīkoti sanmezgli;

Visos sanmezglos regulējamās siltās grīdas;

Griestu augstums ap 3m;

Reaton ugunsdrošās, skaņu izolējošās ārdurvis;

Stikla 3-pakešu logi;

Centrālā apkure ar individuālo skaitītāju;

Laba skaņas izolācija;

Renovēts nams – atjaunota fasāde un kāpņu telpa;

Shindler lifts;

Bruģēts ceļš un autostāvvieta ar elektrouzlādes staciju;

Norobežota teritorija un slēdzama kāpņutelpa;

Mājai augstā energoefektivitāte;

Zeme īpašumā.

Iespējama dzīvokļu pārplānošana.

Sīkāka informācija - www.mezaparkalofti.lv

  • Centrālā apkure
  • Internets
  • Mēbelēts
  • Slēdzama kāpņu telpa



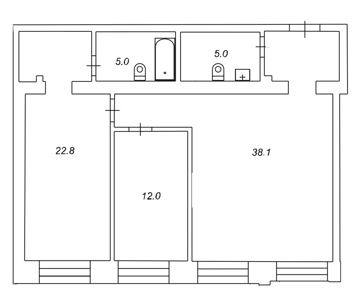
Plānojums:



Uz kartes:

Starlex inovatīvā un atraktīvā pieeja nodrošina efektīvu pārdošanas procesu!
X

Nosūtīt ziņu

Privātums ir svarīgs

Mēs izmantojam sīkdatnes, lai nodrošinātu jums labāko pieredzi mūsu vietnē.

Mēs izmantojam arī papildu sīkdatnes, lai saprastu, kā tiek izmantota mūsu vietne un uzlabotu mūsu pakalpojumus.