Starlex Autonomous building in Old Riga near Dome Square

Autonomous building in Old Riga near Dome Square


825 m2

m2

pre war
1 800 000 EUR
Jēkaba iela 3/5, Vecrīga, Rīga
Oskars Frīde
+371 29352652
oskars@starlex.lv
Call
Gallery

Description:

For sale is an autonomous building at Jēkaba Street 3/5, (next to Dome Square).

The property is currently vacant.

Previous tenant: ''Silver Museum''

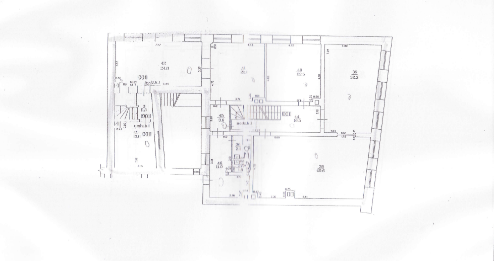
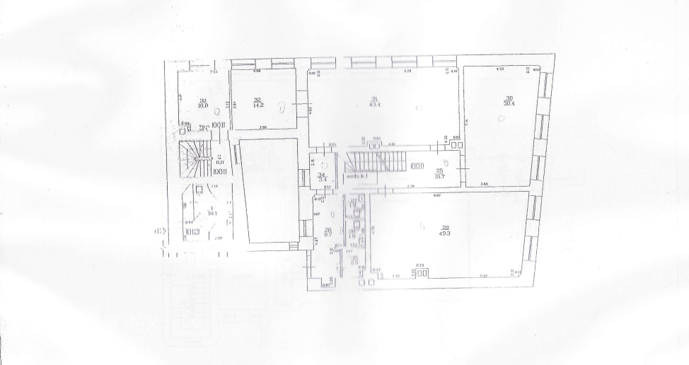
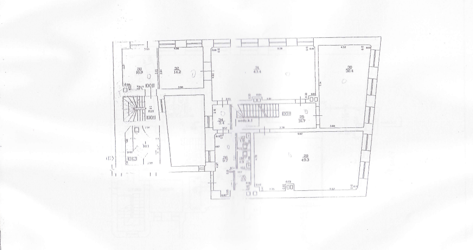
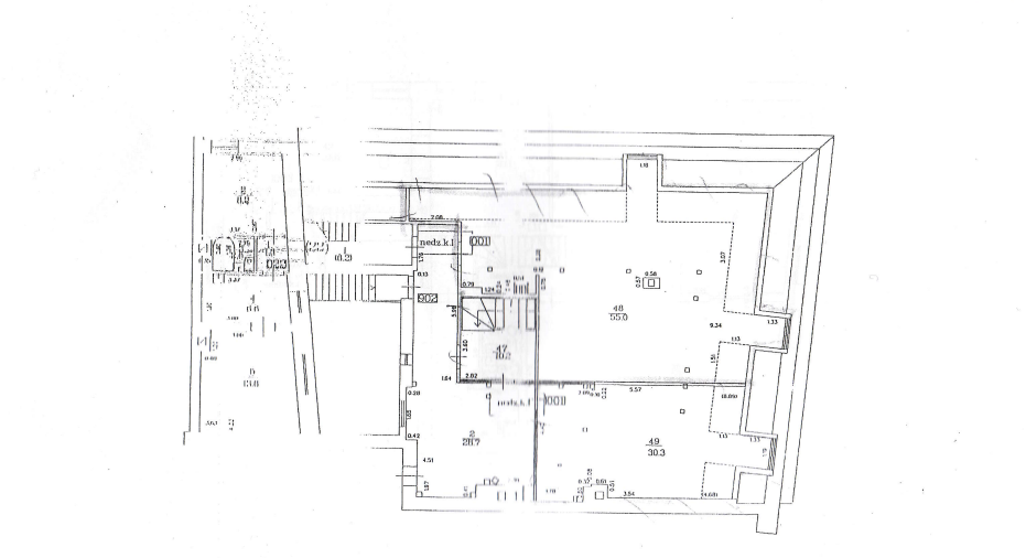
The office space is offered with high-quality full finishing, original wooden beams have been preserved on the attic floor, an air ventilation system is available on the 1st floor, natural ventilation on the upper floors, there is no elevator in the building, there are work spaces separated by glass partitions, all amenities and communications are available, paid parking spaces next to the building. A safe deposit box and document storage are available in the basement of the building. The first floor is suitable for customer service (current tenant: bank).

Additionally, you must pay for utility bills (electricity, water, heating), a management fee of 1.50 EUR/m2, as well as a real estate tax of 0.48 EUR/m2.

Yield ~ 5% per year.

Total area: 825 m2.

Price: 1800000 EUR.

  • Central heating
  • Internet



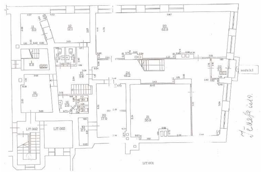
Layout:



On the map:

X

Choose a realtor and send a message

Privacy matters

We use cookies to give you the best experience on our website.

We also use additional cookies to understand how our site is used and to improve our services.