Starlex Residential property for sale in the center of Riga on Valmieras Street

Residential property for sale in the center of Riga on Valmieras Street


1237 m2

800 m2

pre war
600 000 EUR
Bruņinieku iela 139A, Centrs, Rīga
Oskars Frīde
+371 29352652
oskars@starlex.lv
Call
Gallery

Description:

Residential property for sale in the center of Riga, Bruņinieku Street 139A (near Valmieras Street).

Possible application - office, shop, warehouse.

Area: 1237 m2.

Number of floors: 4

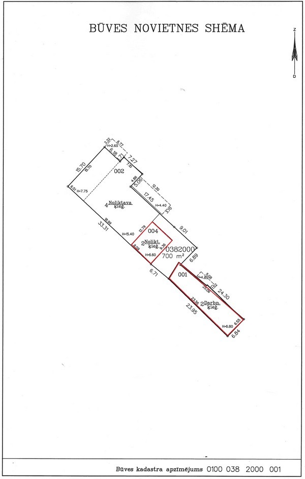
Land area: 700 m2

Free parking spaces both next to the building and in the yard.

A freight elevator is available in the building.

The property is free of tenants.

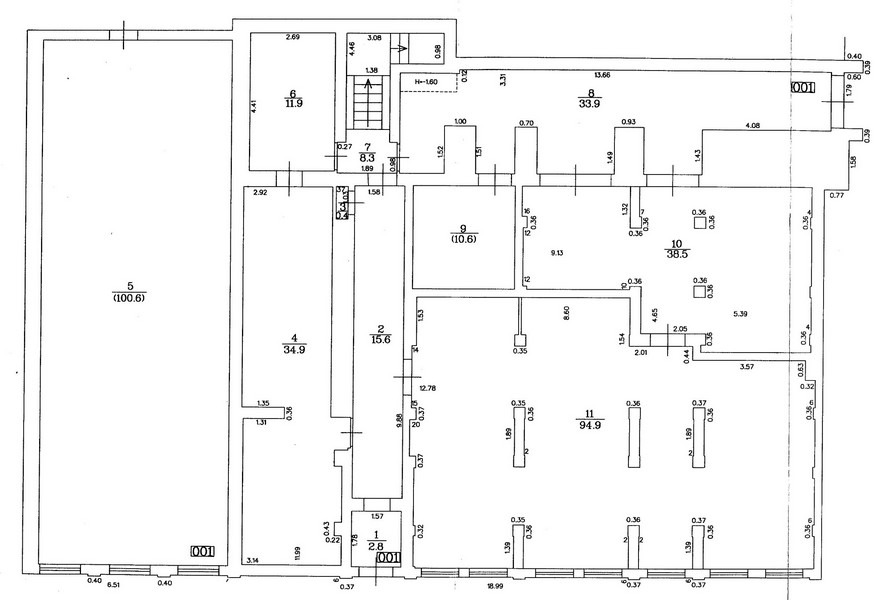
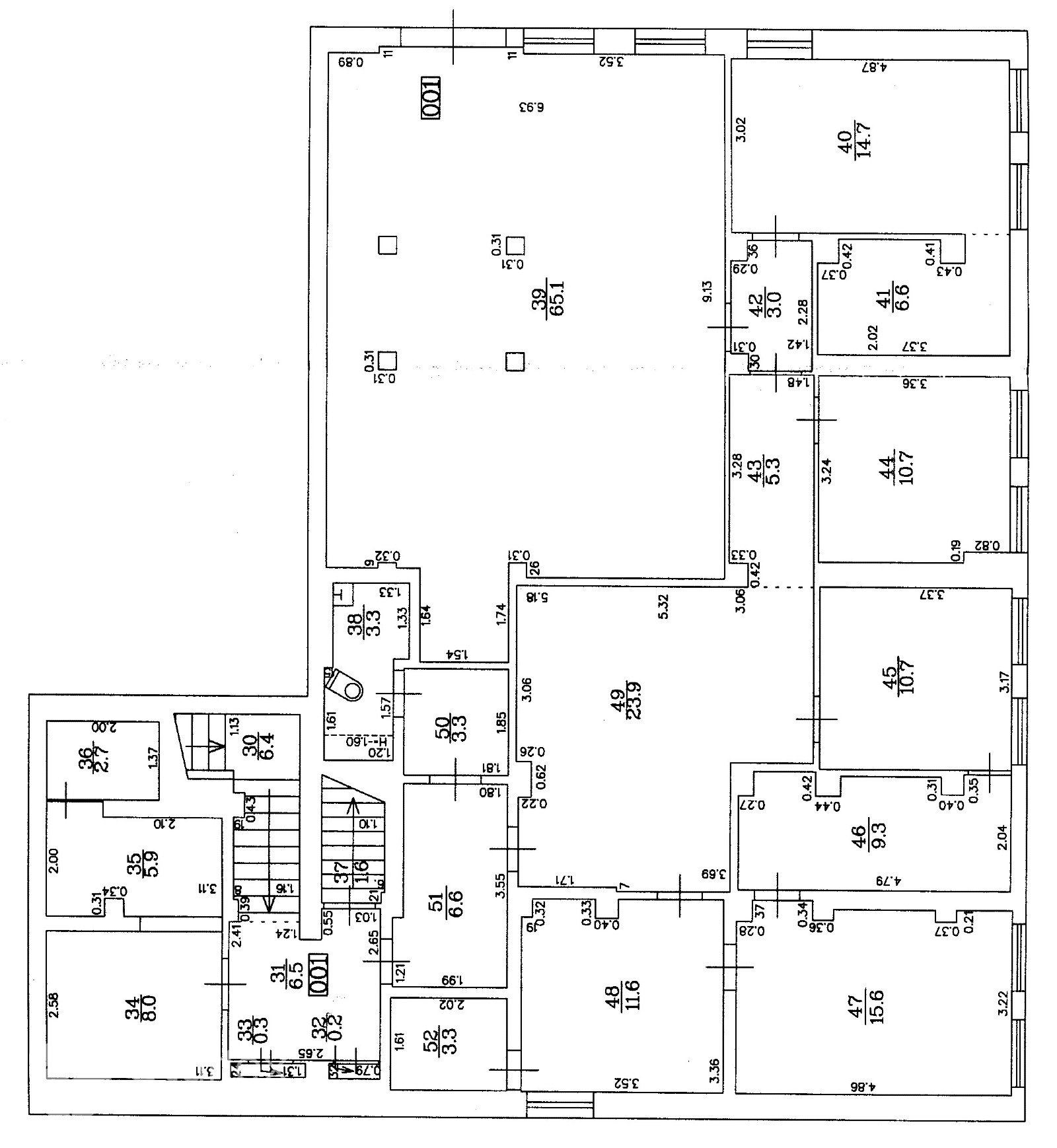
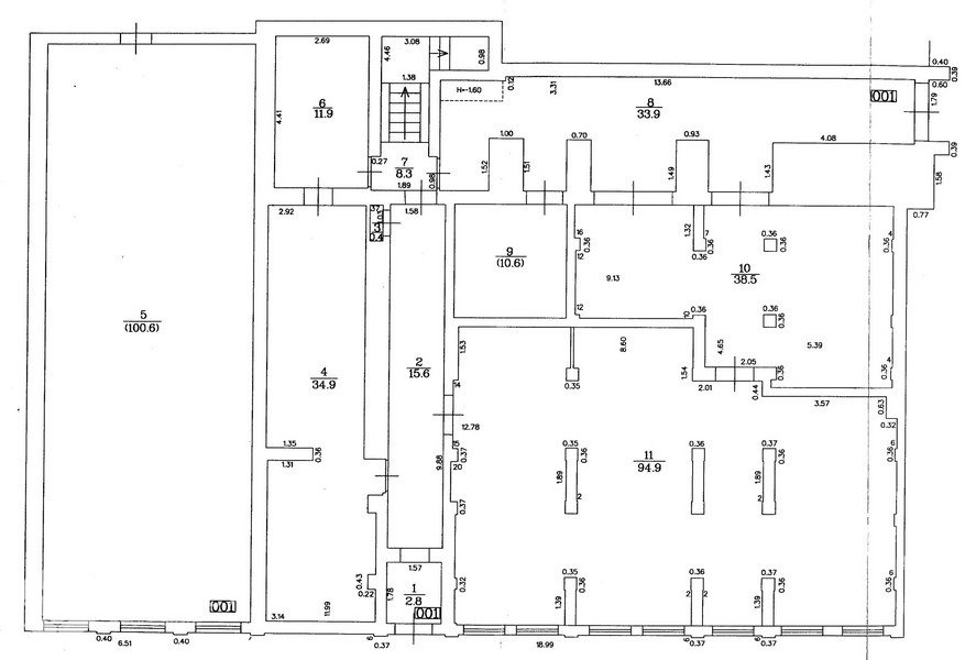
Layout: (1st floor) 94.90 m2 sales hall, 38.50 m2 auxiliary room/storage, spacious 100.60 m2 open plan hall; (2nd floor) spacious warehouse/office/trade hall 154.00 m2 and 84.70 m2, sauna with pool, several auxiliary rooms, WC; (3rd floor) both insulated and walk-through office premises with a total area of 150 m2; (4th floor) storage/archive premises with an area of 200 m2.

Amenities: electric heating, bathroom, fire alarm, all communications.

Price: 600,000 EUR.

  • Internet
  • Electricity connection
  • Water connection



Layout:



On the map:

X

Choose a realtor and send a message

Privacy matters

We use cookies to give you the best experience on our website.

We also use additional cookies to understand how our site is used and to improve our services.