Starlex Home, your new beginning.

Home, your new beginning.


99.2 m2

4 Rooms

2 / 2 Floor

New Project
239 900 EUR
Rudzupuķu iela 2, Ādaži, Ādažu nov.
Līga Aizstrauta
+371 28652408
liga@starlex.lv
Call
Gallery

Description:

A new stage of life begins – in a house where warmth, light and a sense of community reign!


Are you looking for a place where children grow up safely and where mornings begin with birdsong?

This townhouse in a new village is exactly that – a home that becomes a home.


Ideal for a family:

A spacious, well-planned house with class A energy efficiency. Thanks to the air-to-water heat pump and water floor heating, it will always be warm here.


Excellent location:

The best schools are nearby - both public and private, where children can learn with joy and grow up in a safe environment.

Convenient transportation to Riga – both by car and public transport.

Closeness to nature – walks in the forest, fresh air and a sense of freedom every day.


Quality that you can feel:

Load-bearing walls made of stone blocks, a roof and interfloor ceilings made of hollow panels – a strong foundation for sustainable living.

PVC windows with triple glazing – both sound and heat insulation.


Finishing to your taste:

Choose one of 3 finishing options to make your home reflect your style.

The walls and ceiling are painted in calm tones, the veneered parquet creates coziness, and the 60x60 ceramic tiles in the bathroom add elegance and functionality.


A new village with warm neighbors, people who smile and greet each other.



  • Autonomous heating
  • Air conditioning



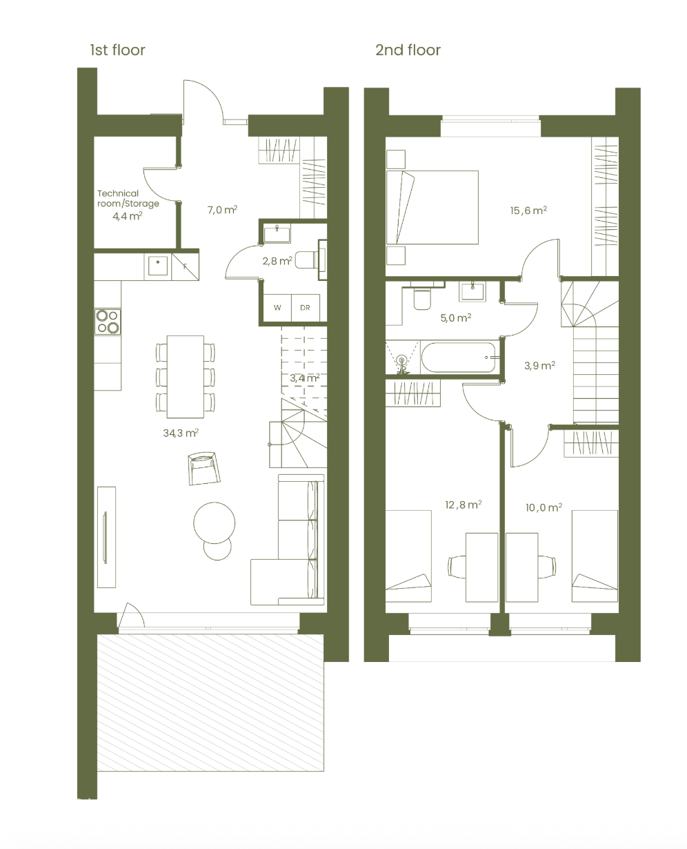
Layout:



On the map:

X

Choose a realtor and send a message

Privacy matters

We use cookies to give you the best experience on our website.

We also use additional cookies to understand how our site is used and to improve our services.