Starlex Property in the center

Property in the center


6041 m2

5408 m2

pre war
1,700,000 1 530 000 EUR
Brīvības iela 188, Centrs, Rīga
Ernests Vaivods
+371 29411922
ernests@starlex.lv
Call
Gallery

Description:

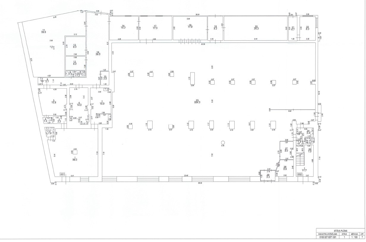
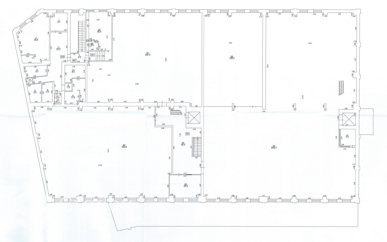
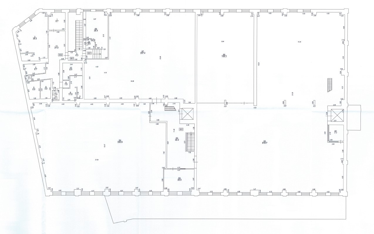
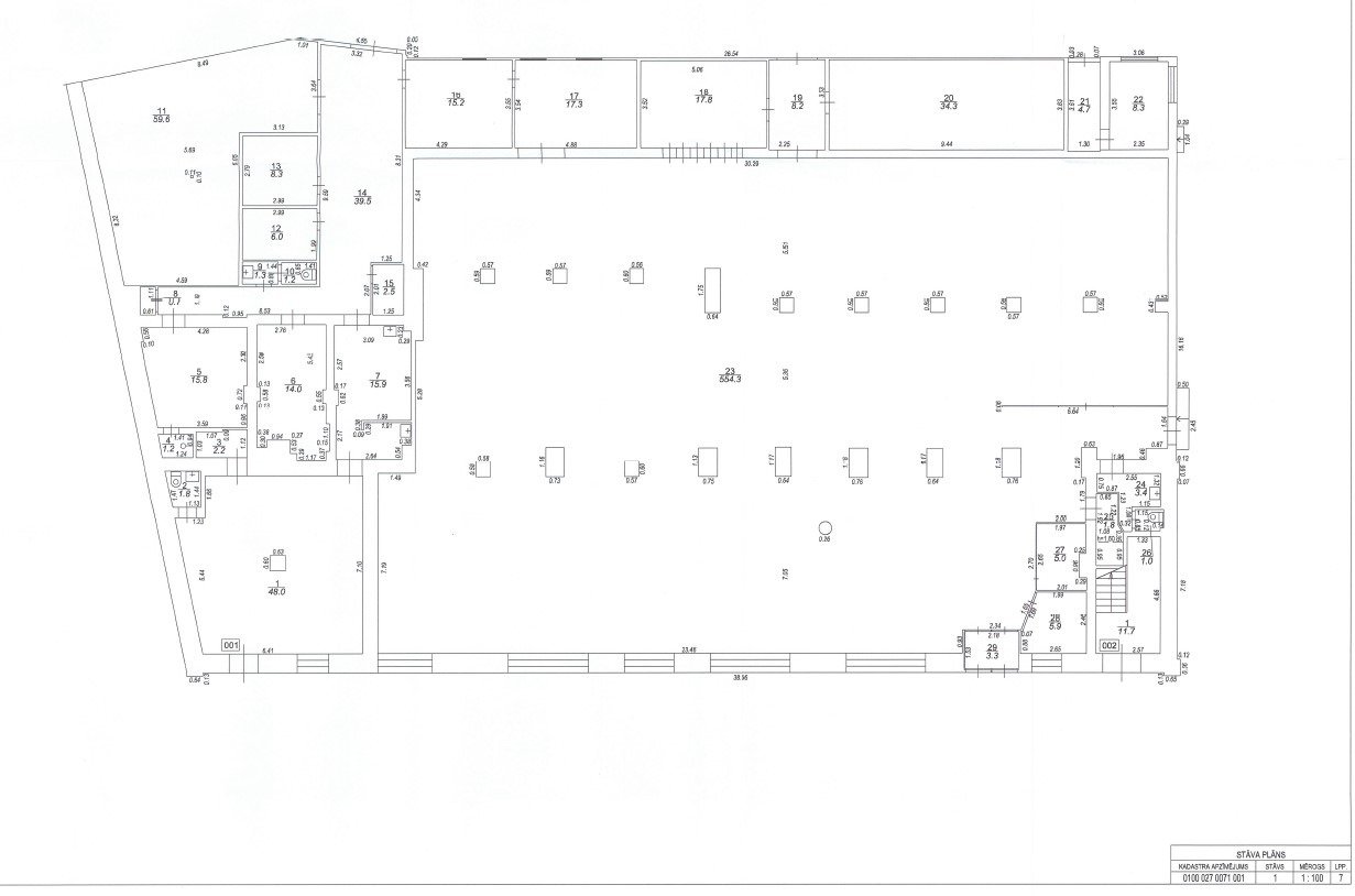
Property for sale, located in the center of Riga.

The property consists of land plot 5408 and houses, which were put into operation in 1937.

The property is located between Brīvības, Pärnu and Kr. Barona streets. Access to the territory is from Kr. Barona Street and Brīvības Street. The property is currently used as commercial space for rent. There are shops, warehouses and offices. The interior decoration of the premises of the building is different, generally in a satisfactory or partially good technical condition, in places there is natural wear and tear, individual rooms in a partially satisfactory technical condition.

The territory is asphalted and city communications have been connected - electricity line, city central heating, water supply and sewerage.

Plot description:

area: 5,408 m2;

shape: irregular;

terrain: flat;

fencing: partly construction of existing buildings, partly masonry or metal fence.


More information at the inspection.

  • Central heating
  • Internet
  • Garage



Layout:



On the map:

X

Choose a realtor and send a message

Privacy matters

We use cookies to give you the best experience on our website.

We also use additional cookies to understand how our site is used and to improve our services.