Starlex Multifunctional commercial premises in the very center of Riga

Multifunctional commercial premises in the very center of Riga


160 m2

m2

Wooden house
328,000 285 000 EUR
Ģertrūdes iela 2, Centrs, Rīga
Oskars Frīde
+371 29352652
oskars@starlex.lv
Call
Gallery

Description:

Multifunctional commercial premises for sale in the center of Riga, Ģertrūdes Street 2.

The two-story wooden residential building was built in 1879 - architect Hugo Vills.

Facade building, entrance from Gertrude Street, rooms with 6 wide windows facing Gertrude Street, there is a spare exit to the courtyard of the house.

The premises are suitable for trade, office, beauty salons.

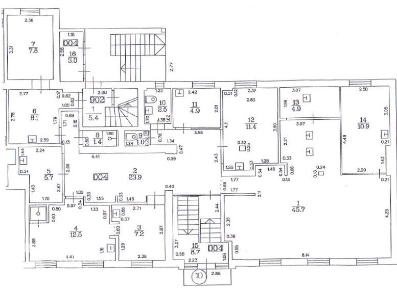
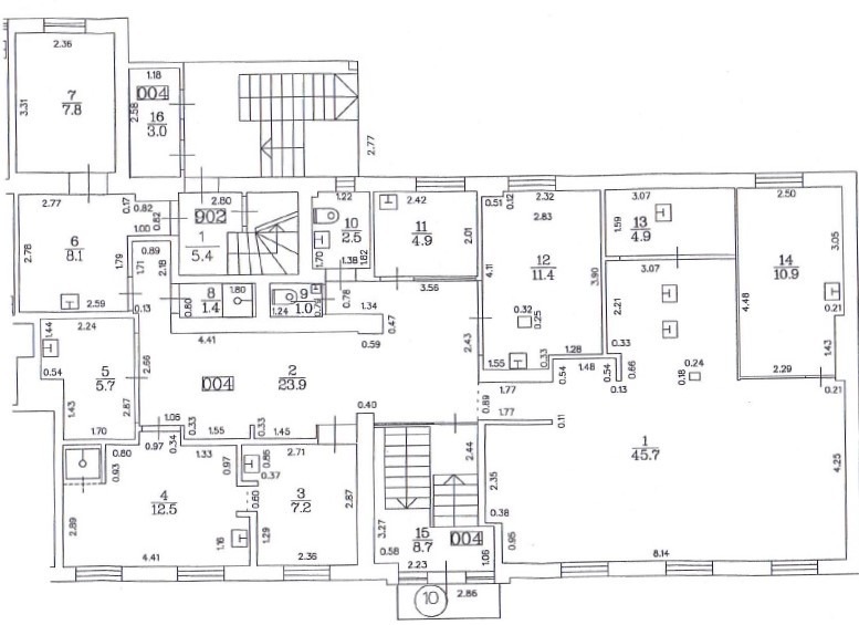
Layout: spacious 45.7 sq.m. work room/hall, 7 isolated work rooms (most of them have water supply with sinks), 2 WC.

Amenities: city heating, sanitary unit, fire alarm, all communications.

Parking options in the courtyard of the house, as well as 2-3 minutes' walk from the "Skonto" stadium.

Public transport infrastructure is well developed in the area.

Land owned.

Area: 160 m2.

Price: 285000 EUR.

  • Central heating
  • Internet
  • Electricity connection
  • Water connection



Layout:



On the map:

X

Choose a realtor and send a message

Privacy matters

We use cookies to give you the best experience on our website.

We also use additional cookies to understand how our site is used and to improve our services.