Starlex Modern offices in Elijas street

Modern offices in Elijas street


285 m2

8 telpas

5 / 6 stāvs
2 423 EUR/mēn - 8,5 EUR/m2
Elijas iela 17, Centrs, Rīga
Ernests Vaivods
+371 29411922
ernests@starlex.lv
Pieteikt apskati
← Atpakaļ
Galerija

Apraksts:

Iznomā biroja telpas centrā – Elijas ielā 17.

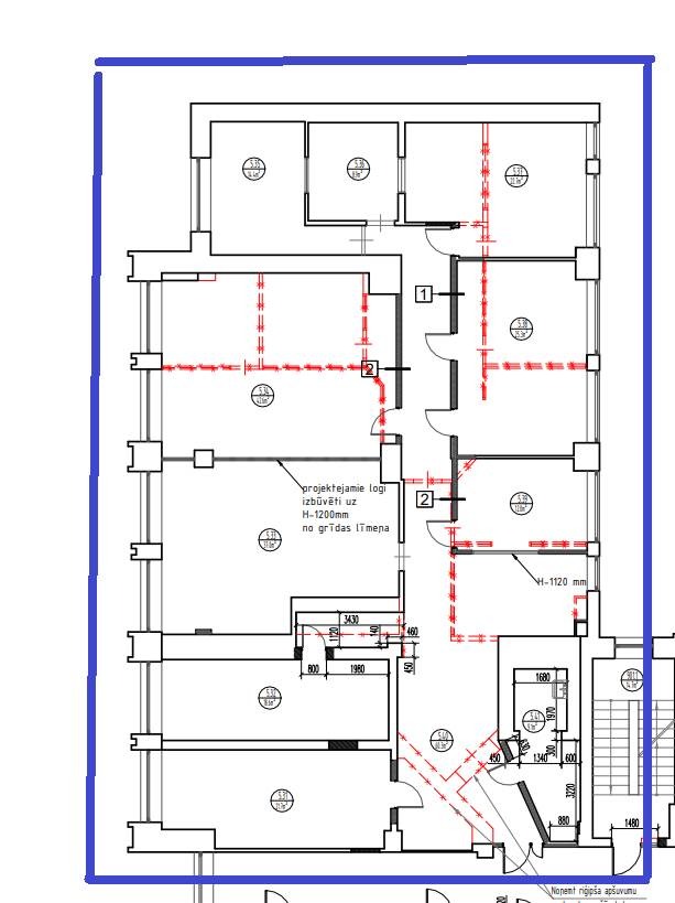
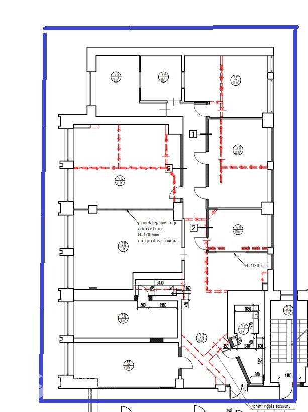
Birojs izvietots ēkas 5.stāvā. Kopējā platība 285 m2

Plānojums:

- 8 atsevišķi nodalīti kabineti ;

- servertelpa ar dzesēšanas sistēmu;

- virtuve

Pirms nomnieka ienākšanas, birojam tiks veikts kosmētiskais remonts.

Nomājot šīs telpas, tiek saņemtas 2 bezmaksas stāvvietas pie ēkas.

 Birojā uzstādīts kondicionieris, LED apgaismojums.

Ēka aprīkota ar liftu, optisko internetu, videonovērošanas kamerām.

Pie ēkas autostāvvieta (C zona), kā arī iespējams novietot automašīnu apkārtnē esošajās autostāvvietās.

Nomas maksa 8.5 EUR/m2 + apsaimniekošanas maksa 1,50 EUR/m2 + komunālie pakalpojumi.

  • Autonoma apkure
  • Apsargs un kameras
  • Internets
  • Kondicionieris
  • Signalizācija
  • Slēdzama kāpņu telpa
  • Elektrības pieslēgums
  • Ūdens pieslēgums



Plānojums:



Uz kartes:

Starlex inovatīvā un atraktīvā pieeja nodrošina efektīvu pārdošanas procesu!
X

Nosūtīt ziņu

Privātums ir svarīgs

Mēs izmantojam sīkdatnes, lai nodrošinātu jums labāko pieredzi mūsu vietnē.

Mēs izmantojam arī papildu sīkdatnes, lai saprastu, kā tiek izmantota mūsu vietne un uzlabotu mūsu pakalpojumus.